欢迎访问依家网!
服务热线: 13826574263
深圳
您的位置: 首页>楼市看点

龙华首个2.0新国标,16层小高层+2.5容积率的联发红山新澍雅居值不值得买?

作者:   发布时间: 2026-03-27

最近好多朋友在问龙华红山那个新盘——联发·红山新澍雅居。

实话说,这名字听着挺拗口,但热度不低,为啥?

因为它在号称“宇宙中心”的龙华红山,愣是用69平米做出了三房! 这操作直接把刚需客的眼睛都看直了。



但话说回来,这世上没有十全十美的房子。这个盘到底能不能冲?依家网给大家我扒一扒,优缺点都给你摆明白,看完你心里就有数了。

最新消息:本周末(3月28日)开放营销中心和样板房,最快预计4月中入市!项目是带精装修交付配带方太油烟机,灶蒸烤一体机,华为鸿蒙全屋智能等高配交付标准,69-99㎡3-4房,共计332套。


项目块地(A817-0619宗地)是2025年6月深圳土拍的热门标的。联发集团经过65轮激烈竞价,以12.12亿元(溢价率46.6%)拿下。
位于龙华民治街道民塘路与佳民路交汇处,严格来说属于上塘片区,紧邻金地上塘道二期与隔圳新村。距离四号线上塘站约800米,距6号线上芬站约650米。
项目规划设计为屋面空中式园林,由3座主体楼+配套裙房组成。
相比市面上其它楼盘,产品都是做了升级,户型方面完美诠释了“极致功能主义”,它将小面积发挥到极致,通过多阳台、多飘窗和灵活改造空间。
硬是实现了“小面积、多功能”的奇迹,为总价预算有限的刚需家庭,提供了一个能挤进红山区域的独特选项。
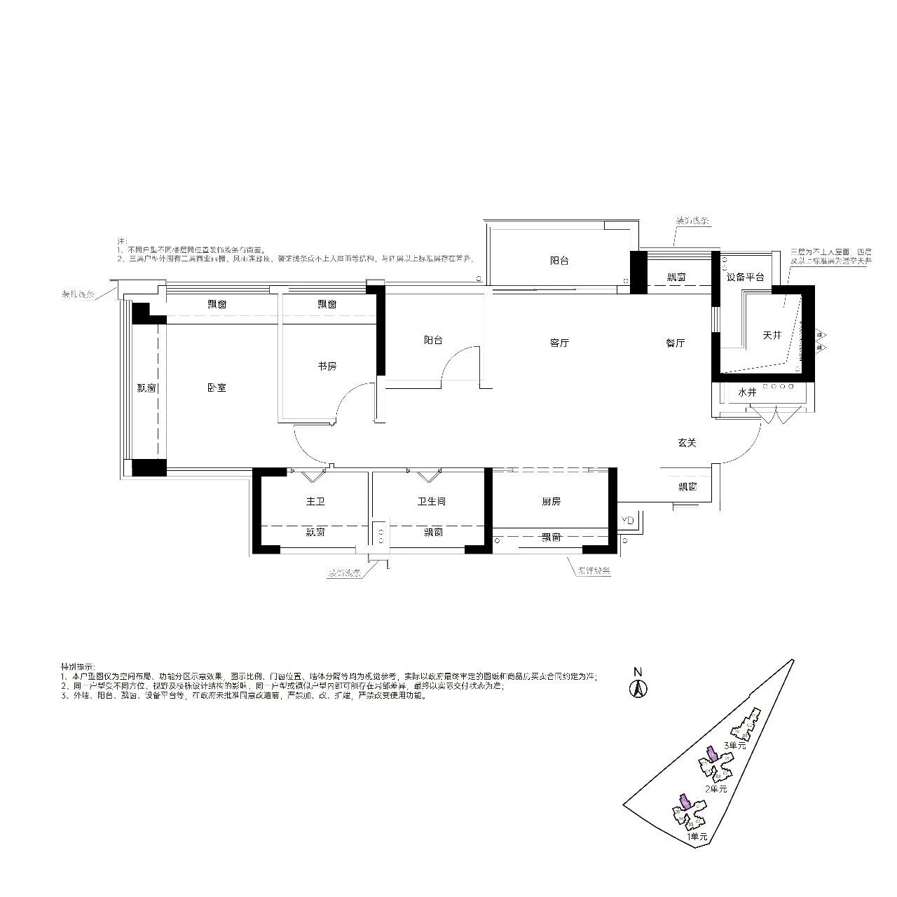
户型鉴赏:
69㎡能做三房,得房率有点感人,把使用面积做到了极致。


69㎡ 2+1房1卫(竖厅)

  • 亮点:三开间朝南,U型厨房+S墙预留冰箱位,书房由阳台改造,得房率极高。
  • 痛点:单卫且无干湿分离,书房面积仅约5㎡,仅能放单人床或做书房;客厅开间仅3米,略显局促。

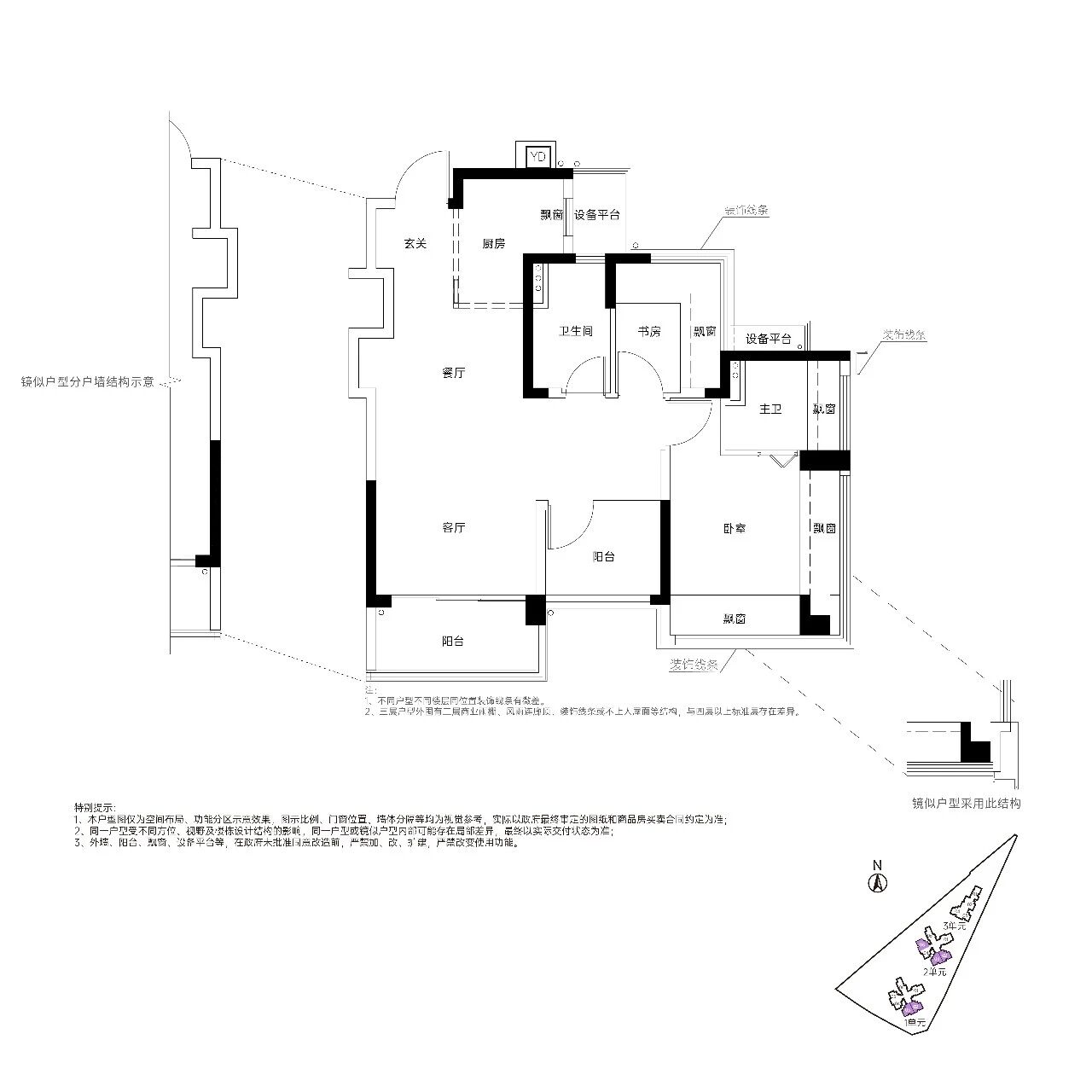
78㎡ 3房2卫(竖厅)

  • 亮点:主卧升级为套房(带独立卫浴),双阳台设计,实用性比69㎡强一个档次。
  • 痛点:书房依然偏小,公卫紧邻餐厅,部分楼栋临路噪音需注意。



84㎡ 3房2卫(横厅)

  • 亮点:横厅设计,客餐厅一体感强,南北通透,视野相对开阔。
  • 痛点:朝向多为西北/东北,采光时间受限,且部分单元直面城中村,私密性打折扣。



99㎡ 4房2卫(横厅)

  • 亮点:五开间朝南,5.35米大横厅,独立玄关,主卧带衣帽间,是项目的“改善王炸”。
  • 痛点:货量极少(仅23套),竞争激烈,且总价门槛高。


尺寸极限:所有房间尺寸都卡在“刚好够用”的底线。69㎡三房的主卧仅约9㎡,次卧约7㎡,居住舒适度需为功能性让步。
楼间距硬伤:地块呈三角形,部分楼栋间距仅16-18米,低楼层采光差且对视严重,选房时务必避开。
产品的优势性的同时也得接受户型对视的不足
红山-上塘板块是龙华最热门置业区域,配套丰富,居住氛围浓厚,周边有金地上塘道、星河传奇、深业颐樾府等大型社区,还有星河CoCo Garden、上塘荟、简上体育综合体等配套。
1:学区挺好
小学学区划分在华东师范大学附属龙华未来小学,
中学学区划分在龙华实验学校。
幼儿园参考金地上塘道配套的幼儿园。
遗憾的没有划入龙华实验学校教育集团学区 。
2:片区少有的低容积率
地块容积率仅为2.5,限高80米,预估26层左右,无人才房,保障房,纯居住社区,是非常期待的产品。
不过居住生舒适度会差些,本身地块小又呈三角形,不太好规划利用,也不太合适做住宅地块。周围视野遮挡多。
3:纯商品房,小区体量小,自身配套弱
地块占地1.08万㎡,建筑面积2.7万㎡,其中住宅26600㎡,无回迁和保障房,500平社区底商。三栋住宅,层高26层左右。
不过周边都是大型社区,居住氛围浓厚,距离星河CoCo Garden也只有300米,平时购物,生活都很便利。


  • 关于定价“走钢丝”,可能不便宜


这块地是联发去年溢价46.6%抢下来的,楼面价就高达4.45万/㎡,算上建安成本,业内估计保本价都要到6.8万/㎡ 。
周边的新房像深业颐樾府,参考价在6.3万/㎡左右,二手房金地上塘道也就4.8-5.3万/㎡ 。
如果开发商想赚钱,卖到7万+,那性价比就不高了,毕竟大家买房是用脚投票的,价格定高了,刚需客转身就走,这对开发商来说是个两难的选择。
预测价格会定在6.5万/㎡左右,大家觉得呢?
总的来说,联发红山新澍雅居就是一枚“硬币的两面”:
一面是红山的黄金地段和极致的户型,
一面是三角地块的拥挤和未来的定价压力,就看你怎么选了。
你对联发红山新澍雅居怎么看?评论区聊聊~
看完文章的朋友
大家觉得本编文章对你有所帮助
可以点个收藏

深圳依家网带你了解全深圳新房动态





TAG标签: 深圳博誉府楼盘 |  云珑府楼盘 |  星河星悦云邸楼盘 |  深圳招商雍云府楼盘 |  深圳鸿荣源尚云楼盘 |  壹湾府楼盘 |  深圳合正观澜汇楼盘 |  锦顺名居楼盘 |  保利招商龙誉楼盘 |  深圳和奕府楼盘 |  合正观澜汇楼盘 |  合正檀悦府楼盘 |  恒壹四季华府楼盘 |  和奕府楼盘 |  珑悦里楼盘 |  深圳保利招商龙誉楼盘 |  柏奕府楼盘 |  深圳锦顺名居楼盘 |  超核楼盘 |  鸿荣源尚云楼盘 |  深圳恒壹四季华府楼盘 |  深圳合正檀悦府楼盘 |  天湖岛楼盘 |  紫芸府楼盘 |  万科启城楼盘 |  龙岸君粼楼盘 |  深圳超核楼盘 |  深圳紫芸府楼盘 |